24小時服務電話:400-697-9948
充換電業務服務電話:400-667-0777

產品特點:
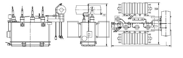
鐵芯
全部采用優質晶粒取向冷軋硅鋼片,全斜無孔綁扎結構,鐵芯為多級階梯形,三接縫或五接縫,空損低、噪音小;卷鐵芯用專用設備直接卷繞而成,無接縫、無角重,減少了磁阻,空損低;非晶合金變壓器鐵芯是一種更優質的鐵芯材料,與傳統硅鋼片相比,平均降低空損72% ,空載電流50% 。
線圈
采用優質QQ縮醛漆包圓銅線,無氧銅桿拉制的扁銅錢繞制而成,其形式有圓筒式、連續式、新型螺旋式、分裂式等,具有足夠的電氣強度、機械強度和散熱能力。為了增加變壓器的抗短路能力,可采用更優質的自粘換位導線。其采用自粘縮醛漆包扁線,繞成線圈后,經加熱漆包扁線之間相互粘合,形成具有剛性的線圈,能承受更大的彎曲應力,從而增強了變壓器的抗短路能力。自粘換位導線的最大特點是能降低變壓器的損耗,由于多股分割的導體加上換位,大大的降低了渦流損耗和環流損耗,能降低繞組熱點的溫升,使整個繞組溫度分布更為均勻。
油箱
采用優質鋼板焊接而成,有橢圓型、矩型等結構,散熱元件采用片式散熱器、膨脹散熱器或波紋油箱,油箱在廠內進行可靠的密封試驗,內外表面經酸洗、磷化處理后,進行三底一面油漆噴涂,既抗腐蝕又美觀大方。
產品正常使用條件
周圍空氣溫度:
最高氣溫:+40℃;
最低氣溫:-45℃;
最熱月平均氣溫:+30℃;
最熱年平均氣溫:+20℃;
海拔高度:≤1000m;
污穢等級:Ⅲ級;
地震烈度:中國12級標準8級;
電源電壓波形:近似正弦波;
注:如果超出以上使用條件,請在訂貨時說明,以便特殊考慮。
1、S(F)11系列66kV 三相油浸式自冷(風冷)雙繞組無勵磁調壓電力變壓器

| 型號 | 額定容量(kVA) | 典型電壓 組合(kV) |
聯結組 標號 |
阻抗電 壓(%) |
總重 (t) |
參考尺寸(mm) L*W*H |
空載損耗 (W) |
負載損耗 (W) |
| S(F)11-6300/66 | 6300 | 高壓H.V. 35~38.5 ±2×2.5% 低壓L.V. 3.15,3.3,6.3, 6.6,10.5 |
YNd11 | 9 | 20 | 4800*3900*4000 | 7.3 | 34.2 |
| S(F)11-8000/66 | 8000 | 22 | 4900*4100*4200 | 8.9 | 40.5 | |||
| S(F)11-10000/66 | 10000 | 25 | 5000*4300*4400 | 10.5 | 47.8 | |||
| S(F)11-12500/66 | 12500 | 28 | 5100*4400*4500 | 12.4 | 56.8 | |||
| S(F)11-16000/66 | 16000 | 30 | 5200*4600*4600 | 15 | 69.8 | |||
| S(F)11-20000/66 | 20000 | 34 | 5300*4700*4800 | 17.6 | 84.6 | |||
| S(F)11-25000/66 | 25000 | 41 | 5500*4700*5000 | 20.8 | 100 | |||
| S(F)11-31500/66 | 31500 | 46 | 5600*4800*5200 | 24.6 | 120 | |||
| S(F)11-40000/66 | 40000 | 57 | 5800*5000*5300 | 29.4 | 141 | |||
| S(F)11-50000/66 | 50000 | 67 | 6000*5300*5500 | 35.2 | 167 | |||
| S(F)11-63000/66 | 63000 | 73 | 6200*5600*5700 | 41.6 | 198 |
2、S(F)Z11系列66 kV 三相油浸式自冷(風冷)雙繞組有載調壓電力變壓器

| 型號 | 額定容量(kVA) | 典型電壓 組合(kV) |
聯結組 標號 |
阻抗電 壓(%) |
總重 (t) |
參考尺寸(mm) L*W*H |
空載損耗 (W) |
負載損耗 (W) |
| S(F)11-6300/66 | 6300 | 高壓H.V. 35~38.5 ±2×2.5% 低壓L.V. 3.15,3.3,6.3, 6.6,10.5 |
YNd11 | 9~11 | 22 | 5600*3800*4000 | 8 | 34.2 |
| S(F)11-8000/66 | 8000 | 24 | 5700*4000*4200 | 9.6 | 40.5 | |||
| S(F)11-10000/66 | 10000 | 27 | 5800*4200*4400 | 11.3 | 47.8 | |||
| S(F)11-12500/66 | 12500 | 30 | 5900*4300*4500 | 13.4 | 56.8 | |||
| S(F)11-16000/66 | 16000 | 33 | 6000*4400*4600 | 16.1 | 69.8 | |||
| S(F)11-20000/66 | 20000 | 36 | 6100*4500*4800 | 19.2 | 84.6 | |||
| S(F)11-25000/66 | 25000 | 43 | 6500*4500*5000 | 22.7 | 100 | |||
| S(F)11-31500/66 | 31500 | 49 | 6600*4600*5200 | 26.9 | 120 | |||
| S(F)11-40000/66 | 40000 | 59 | 6800*4800*5300 | 32.2 | 141 | |||
| S(F)11-50000/66 | 50000 | 10~12 | 69 | 7000*5000*5500 | 38 | 167 | ||
| S(F)11-63000/66 | 63000 | 75 | 7400*5300*5700 | 44.9 | 198 |